1100 W 275 S, Lafayette, IN 47909 (MLS # 202532095)
|
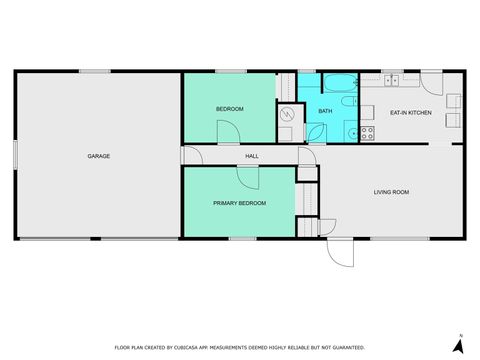
1100 W 275 S, Lafayette, Indiana - Located just west of US-231 in a peaceful area with minimal traffic, this charming home sits on just under a half acre. Inside, you'll find two full bedrooms and a large bathroom with plenty of storage and convenient access to the utilities. The living room flows into an eat-in kitchen, where the laundry is easily accessible. This property is being sold as-is, but it offers great bones and a solid structure, making it a fantastic opportunity for the right buyer. An oversized two-car garage adds plenty of space for vehicles, tools, or hobbies. If you're looking for a bit of land in a quiet setting, this one's worth a look.
| DAYS ON MARKET | 123 | LAST UPDATED | 11/12/2025 |
|---|---|---|---|
| TRACT | None | YEAR BUILT | 1975 |
| GARAGE SPACES | 2.0 | COUNTY | Tippecanoe |
| STATUS | Active | PROPERTY TYPE(S) | Single Family |
| School District | Tippecanoe School Corp. |
|---|---|
| Elementary School | Mintonye |
| Jr. High School | Southwestern |
| High School | Mc Cutcheon |
| PRICE HISTORY | |
| Prior to Sep 12, '25 | $220,000 |
|---|---|
| Sep 12, '25 - Nov 12, '25 | $210,000 |
| Nov 12, '25 - Today | $185,000 |
| ADDITIONAL DETAILS | |
| AIR | Ceiling Fan(s), Wall Unit(s) |
|---|---|
| AIR CONDITIONING | Yes |
| APPLIANCES | Dryer, Electric Range, Gas Water Heater, Refrigerator, Washer, Water Heater |
| CONSTRUCTION | Block |
| GARAGE | Attached Garage, Yes |
| HEAT | Forced Air |
| INTERIOR | Ceiling Fan(s), Eat-In Kitchen, Laminate Counters |
| LOT | 0.45 acre(s) |
| LOT DESCRIPTION | Level |
| LOT DIMENSIONS | 194x100 |
| PARKING | Gravel, Attached |
| SEWER | Septic Tank |
| STORIES | 1 |
| STYLE | Ranch |
| SUBDIVISION | None |
| TAXES | 1364 |
| WATER | Private, Well |
MORTGAGE CALCULATOR
TOTAL MONTHLY PAYMENT
0
P
I
*Estimate only
Listed with Kellie Dussault, Keller Williams Lafayette, Agt: 463-239-0965
The data relating to real estate for sale on this web site comes in part from the Internet Data exchange (“IDX”) program of the Indiana Regional MLS®. IDX information is provided exclusively for consumers’ personal, non-commercial use, that it may not be used for any purpose other than to identify prospective properties consumers may be interested in purchasing. Data is deemed reliable but is not guaranteed accurate by the MLS.
Copyright© 2025 IRMLS. All rights reserved.
Last Updated On: 12/13/25 12:54 PM PST
Walk Score provided by walkscore.com
Copyright© 2025 IRMLS. All rights reserved.
Last Updated On: 12/13/25 12:54 PM PST
Walk Score provided by walkscore.com
This IDX solution is (c) Diverse Solutions 2025.
| SATELLITE VIEW |
| / | |
We respect your online privacy and will never spam you. By submitting this form with your telephone number
you are consenting for Steve
Schwering to contact you even if your name is on a Federal or State
"Do not call List".

