201 E Franklin Street, Delphi, IN 46923 (MLS # 202533922)
|
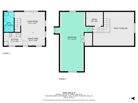
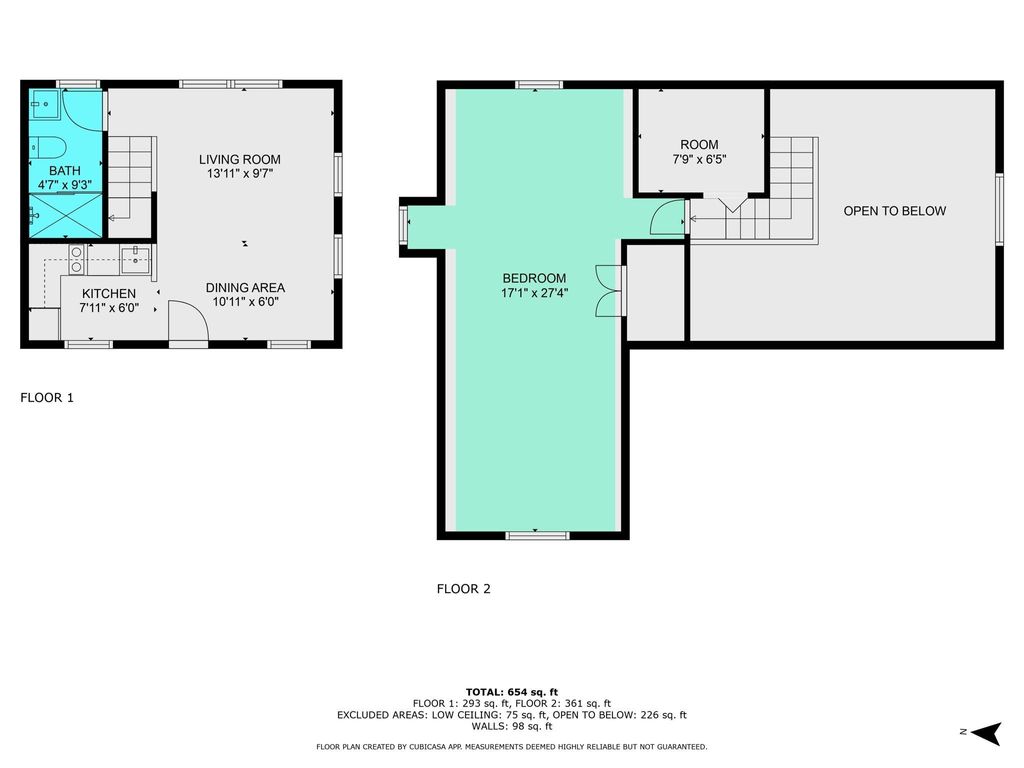
Timeless Charm is what this home offers!! Step into this beautifully preserved turn-of-the-century home, where character and elegance greet you from the moment you enter the front foyer. Rich woodwork, grand pocket doors, and a gracefully curved staircase sets the tone for a residence that blends historic charm an ornate design. This home offers spacious & functional Living The second floor features three generously sized bedrooms, each with ample closet space, and a full bathroom. Convenient second-floor laundry adds ease to your daily routine. Upstairs, the third floor expands your living options with a mini-split cooling system and additional square footage"”perfect for a fourth bedroom, playroom, or family flex space. ?? Bonus Living Quarters Looking for an in-law suite or separate guest accommodations? The detached garage offers over 800 sq. ft. of versatile living space, complete with an open-concept kitchen and living area, a full tiled shower, and a spacious loft ideal for sleeping quarters or creative use.
DAYS ON MARKET | 58 | LAST UPDATED | 9/10/2025 |
---|---|---|---|
TRACT | None | YEAR BUILT | 1896 |
GARAGE SPACES | 1.0 | COUNTY | Carroll |
STATUS | Active | PROPERTY TYPE(S) | Single Family |
School District | Delphi Community School Corp. |
---|---|
Elementary School | Delphi Community |
Jr. High School | Delphi Community |
High School | Delphi |
PRICE HISTORY | |
Prior to Sep 10, '25 | $419,000 |
---|---|
Sep 10, '25 - Today | $409,900 |
ADDITIONAL DETAILS | |
AIR | Ceiling Fan(s), Central Air |
---|---|
AIR CONDITIONING | Yes |
APPLIANCES | Dishwasher, Disposal, Dryer, Electric Cooktop, Electric Oven, Electric Range, Electric Water Heater, Gas Water Heater, Microwave, Refrigerator, Washer, Water Heater, Water Softener Owned |
BASEMENT | Crawl Space, Partial, Sump Pump, Unfinished, Yes |
CONSTRUCTION | Wood Siding |
GARAGE | Yes |
HEAT | Floor Furnace, Forced Air, Natural Gas |
INTERIOR | Ceiling Fan(s), Eat-In Kitchen, Entrance Foyer, Natural Woodwork, Pantry |
LOT | 4792 sq ft |
LOT DESCRIPTION | Corner Lot, Landscaped |
LOT DIMENSIONS | 0.110 |
PARKING | Garage Door Opener, None, Garage, Detached |
SEWER | Public Sewer |
STORIES | 2 |
STYLE | Historic, Victorian |
SUBDIVISION | None |
TAXES | 2611 |
WATER | Public |
MORTGAGE CALCULATOR
TOTAL MONTHLY PAYMENT
0
P
I
*Estimate only
Listed with Joan Abbott, Joan Abbott Real Estate, Agt: 765-564-9822
The data relating to real estate for sale on this web site comes in part from the Internet Data exchange (“IDX”) program of the Indiana Regional MLS®. IDX information is provided exclusively for consumers’ personal, non-commercial use, that it may not be used for any purpose other than to identify prospective properties consumers may be interested in purchasing. Data is deemed reliable but is not guaranteed accurate by the MLS.
Copyright© 2025 IRMLS. All rights reserved.
Last Updated On: 10/21/25 1:53 PM PDT
Walk Score provided by walkscore.com
Copyright© 2025 IRMLS. All rights reserved.
Last Updated On: 10/21/25 1:53 PM PDT
Walk Score provided by walkscore.com
This IDX solution is (c) Diverse Solutions 2025.
SATELLITE VIEW |
/ | |
We respect your online privacy and will never spam you. By submitting this form with your telephone number
you are consenting for Steve
Schwering to contact you even if your name is on a Federal or State
"Do not call List".