3816 S Connie Drive, Lafayette, IN 47905 (MLS # 202536907)
|
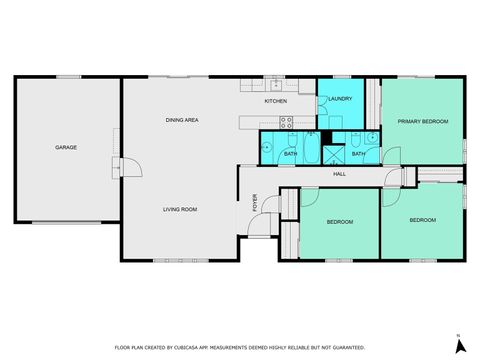
Located just off Old US-25, this inviting ranch home offers a comfortable layout with plenty of charm. A spacious living room welcomes you in and flows easily into the dining area, kitchen, and convenient utility/laundry room. To the right of the foyer, you'll find three generously sized bedrooms, including a primary suite with a private ensuite featuring a stand-up shower. The primary bedroom also opens to a secondary deck, perfect for quiet mornings or evenings overlooking your backyard. Out back, enjoy a freshly updated wooden deck with multiple electric outlets, ideal for entertaining. The yard also includes an inground swimming pool"”offered with the option to fill before closing or a partial allowance to update"”along with a concrete pad and basketball hoop. A shed/pool house provides great storage for yard equipment and pool essentials. This property blends character, comfort, and outdoor living, ready for its next owner to make it home.
| DAYS ON MARKET | 1 | LAST UPDATED | 10/27/2025 |
|---|---|---|---|
| TRACT | Lake Road | YEAR BUILT | 1970 |
| GARAGE SPACES | 1.0 | COUNTY | Tippecanoe |
| STATUS | Active | PROPERTY TYPE(S) | Single Family |
| School District | Tippecanoe School Corp. |
|---|---|
| Elementary School | Hershey |
| Jr. High School | East Tippecanoe |
| High School | William Henry Harrison |
| ADDITIONAL DETAILS | |
| AIR | Ceiling Fan(s), Central Air |
|---|---|
| AIR CONDITIONING | Yes |
| APPLIANCES | Dishwasher, Disposal, Electric Range, Gas Water Heater, Microwave, Refrigerator, Washer, Water Heater, Water Softener Owned |
| BASEMENT | Crawl Space, None |
| CONSTRUCTION | Vinyl Siding |
| GARAGE | Attached Garage, Yes |
| HEAT | Forced Air, Natural Gas |
| INTERIOR | Ceiling Fan(s), Entrance Foyer, Laminate Counters, Master Downstairs, Open Floorplan |
| LOT | 0.44 acre(s) |
| LOT DESCRIPTION | Level, Wooded |
| LOT DIMENSIONS | 100X189 |
| PARKING | Concrete, Attached |
| POOL | Yes |
| POOL DESCRIPTION | In Ground |
| SEWER | Septic Tank |
| STORIES | 1 |
| STYLE | Ranch |
| SUBDIVISION | Lake Road |
| TAXES | 1005.48 |
| WATER | Private, Well |
MORTGAGE CALCULATOR
TOTAL MONTHLY PAYMENT
0
P
I
*Estimate only
Listed with Spencer Childers, Keller Williams Lafayette, Agt: 765-430-4276
The data relating to real estate for sale on this web site comes in part from the Internet Data exchange (“IDX”) program of the Indiana Regional MLS®. IDX information is provided exclusively for consumers’ personal, non-commercial use, that it may not be used for any purpose other than to identify prospective properties consumers may be interested in purchasing. Data is deemed reliable but is not guaranteed accurate by the MLS.
Copyright© 2025 IRMLS. All rights reserved.
Last Updated On: 10/28/25 11:37 PM PDT
Walk Score provided by walkscore.com
Copyright© 2025 IRMLS. All rights reserved.
Last Updated On: 10/28/25 11:37 PM PDT
Walk Score provided by walkscore.com
This IDX solution is (c) Diverse Solutions 2025.
| SATELLITE VIEW |
| / | |
We respect your online privacy and will never spam you. By submitting this form with your telephone number
you are consenting for Steve
Schwering to contact you even if your name is on a Federal or State
"Do not call List".

