515 N Washington Street, Kokomo, IN 46901 (MLS # 202538274)
|
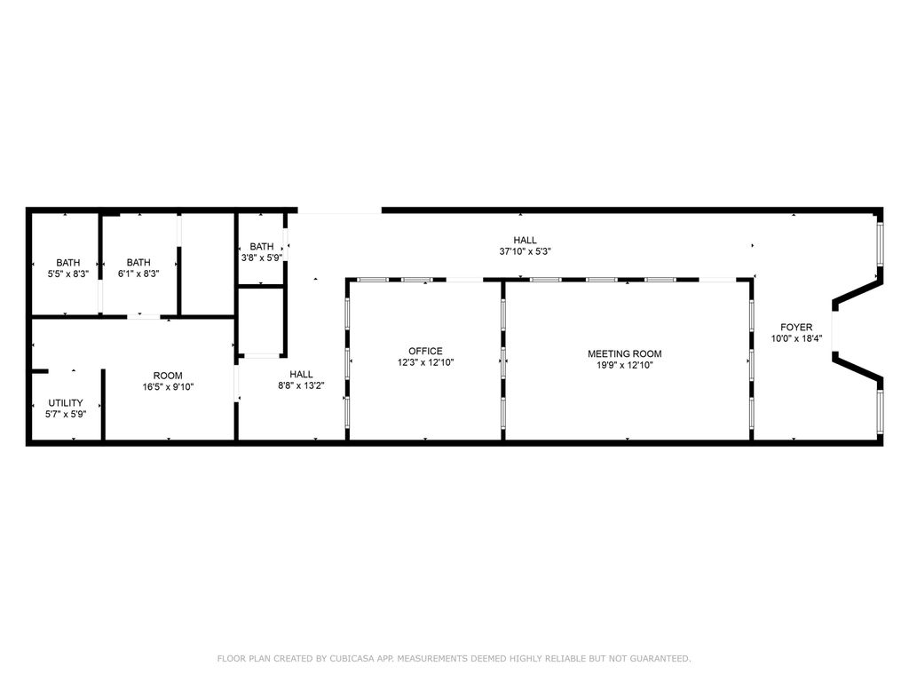
Discover an exceptional opportunity in the heart of downtown Kokomo. This well-located commercial building sits in a high-traffic area, within walking distance to shopping and dining. Currently designed as a professional office, the space features a spacious office area and conference room with 2 half bathrooms. The large windows allow for plenty of natural light to fill the interior, creating a welcoming atmosphere. This property also includes 2 designated parking spaces behind the building. Zoned C-1, this property has endless possibilities for various business ventures. Don't miss this chance to establish your presence in this thriving downtown environment.
| DAYS ON MARKET | 59 | LAST UPDATED | 9/21/2025 |
|---|---|---|---|
| TRACT | None | YEAR BUILT | 1940 |
| COUNTY | Howard | STATUS | Active |
| PROPERTY TYPE(S) | Commercial |
| ADDITIONAL DETAILS | |
| AIR | Central Air |
|---|---|
| AIR CONDITIONING | Yes |
| CONSTRUCTION | Brick, Stone |
| HEAT | Forced Air, Natural Gas |
| LOT | 2614 sq ft |
| LOT DESCRIPTION | Corner Lot |
| LOT DIMENSIONS | 21X120 |
| PARKING | Off Street, On Street |
| SEWER | Public Sewer |
| STORIES | 1 |
| SUBDIVISION | None |
| TAXES | 2868 |
| WATER | Public |
MORTGAGE CALCULATOR
TOTAL MONTHLY PAYMENT
0
P
I
*Estimate only
Listed with Jessica Shannon, Modern Real Estate, Cell: 574-727-1358
The data relating to real estate for sale on this web site comes in part from the Internet Data exchange (“IDX”) program of the Indiana Regional MLS®. IDX information is provided exclusively for consumers’ personal, non-commercial use, that it may not be used for any purpose other than to identify prospective properties consumers may be interested in purchasing. Data is deemed reliable but is not guaranteed accurate by the MLS.
Copyright© 2025 IRMLS. All rights reserved.
Last Updated On: 11/19/25 2:11 PM PST
Walk Score provided by walkscore.com
Copyright© 2025 IRMLS. All rights reserved.
Last Updated On: 11/19/25 2:11 PM PST
Walk Score provided by walkscore.com
This IDX solution is (c) Diverse Solutions 2025.
| SATELLITE VIEW |
| / | |
We respect your online privacy and will never spam you. By submitting this form with your telephone number
you are consenting for Steve
Schwering to contact you even if your name is on a Federal or State
"Do not call List".

