2009 Thompson Street, Lafayette, IN 47904 (MLS # 202542856)
|
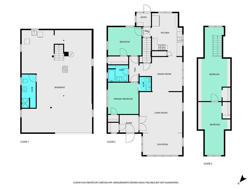
Spacious 3-4 bedroom bungalow featuring many recent updates, including a modernized kitchen and refreshed bathrooms. Original hardwood floors and classic trim details preserve the home's historic character, while thoughtful upgrades provide everyday comfort. Enjoy a covered front porch, fenced yard, and an oversized two-car garage with additional parking and storage. The finished attic offers flexible living space, and a full basement adds even more room. Historic charm meets modern convenience in this inviting home. Must see property.
| DAYS ON MARKET | 2 | LAST UPDATED | 10/22/2025 |
|---|---|---|---|
| TRACT | Weaver(s) | YEAR BUILT | 1922 |
| GARAGE SPACES | 2.0 | COUNTY | Tippecanoe |
| STATUS | Active | PROPERTY TYPE(S) | Single Family |
| School District | Lafayette |
|---|---|
| Elementary School | Murdock |
| Jr. High School | Sunnyside/Tecumseh |
| High School | Jefferson |
| ADDITIONAL DETAILS | |
| AIR | Central Air |
|---|---|
| AIR CONDITIONING | Yes |
| APPLIANCES | Dishwasher, Disposal, Dryer, Gas Range, Gas Water Heater, Refrigerator, Washer, Water Heater, Water Softener Owned |
| BASEMENT | Full, Unfinished, Yes |
| CONSTRUCTION | Stone, Vinyl Siding |
| GARAGE | Yes |
| HEAT | Baseboard, Electric, Forced Air, Natural Gas |
| INTERIOR | Eat-In Kitchen, Entrance Foyer, Master Downstairs, Natural Woodwork |
| LOT | 6490 sq ft |
| LOT DESCRIPTION | Level |
| LOT DIMENSIONS | 45 x 144 |
| PARKING | Garage Door Opener, Garage, Detached |
| SEWER | Public Sewer |
| STORIES | 1 |
| STYLE | Bungalow |
| SUBDIVISION | Weaver(s) |
| TAXES | 1587.56 |
| UTILITIES | Cable Available |
| WATER | Public |
MORTGAGE CALCULATOR
TOTAL MONTHLY PAYMENT
0
P
I
*Estimate only
Listed with Brett Lueken, Century 21 The Lueken Group, Agt: 765-586-8524
The data relating to real estate for sale on this web site comes in part from the Internet Data exchange (“IDX”) program of the Indiana Regional MLS®. IDX information is provided exclusively for consumers’ personal, non-commercial use, that it may not be used for any purpose other than to identify prospective properties consumers may be interested in purchasing. Data is deemed reliable but is not guaranteed accurate by the MLS.
Copyright© 2025 IRMLS. All rights reserved.
Last Updated On: 10/24/25 4:37 PM PDT
Walk Score provided by walkscore.com
Copyright© 2025 IRMLS. All rights reserved.
Last Updated On: 10/24/25 4:37 PM PDT
Walk Score provided by walkscore.com
This IDX solution is (c) Diverse Solutions 2025.
| SATELLITE VIEW |
| / | |
We respect your online privacy and will never spam you. By submitting this form with your telephone number
you are consenting for Steve
Schwering to contact you even if your name is on a Federal or State
"Do not call List".

