207 Grant Street, Royal Center, IN 46978 (MLS # 202546511)
|
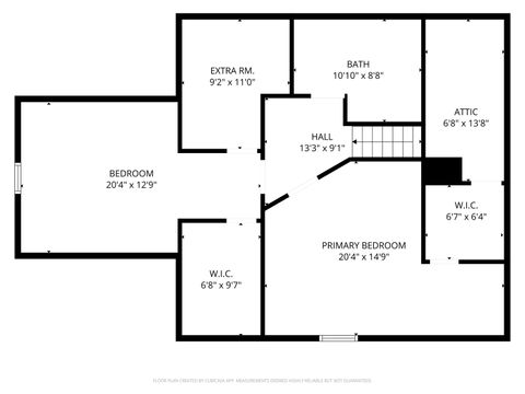
Welcome to this spacious four-bedroom, two-bathroom home offering an abundance of charm and versatility. Two generously sized bedrooms are conveniently located on the main floor, along with a full bathroom, living room, dining room, and a roomy kitchen perfect for everyday cooking and entertaining. A mudroom at the back of the home provides additional convenience, housing the washer and dryer. Upstairs, you'll find two more large bedrooms"”each featuring walk-in closets and additional nooks ideal for a home office, play space, or creative mixed-use areas. There is so much space on the upper level, offering endless possibilities to fit your lifestyle. A second full bathroom is also located upstairs and is incredibly spacious. Enjoy outdoor living with a nice covered front porch, a back deck, and a large yard offering plenty of room for entertaining. The property also includes an 8x10 shed with a lean-to, currently set up as a chicken coop. New furnace and central air installed in 2021. Roof was done in 2012.
| DAYS ON MARKET | 36 | LAST UPDATED | 1/12/2026 |
|---|---|---|---|
| TRACT | None | YEAR BUILT | 1900 |
| COUNTY | Cass | STATUS | Active |
| PROPERTY TYPE(S) | Single Family |
| School District | Pioneer Regional School Corp. |
|---|---|
| Elementary School | Pioneer |
| Jr. High School | Pioneer Jr/Sr |
| High School | Pioneer Jr/Sr |
| PRICE HISTORY | |
| Prior to Jan 12, '26 | $175,000 |
|---|---|
| Jan 12, '26 - Today | $169,000 |
| ADDITIONAL DETAILS | |
| AIR | Ceiling Fan(s), Central Air |
|---|---|
| AIR CONDITIONING | Yes |
| APPLIANCES | Disposal, Gas Water Heater, Water Heater |
| BASEMENT | Partial, Unfinished, Yes |
| CONSTRUCTION | Vinyl Siding |
| HEAT | Forced Air, Natural Gas |
| INTERIOR | Ceiling Fan(s), Walk-In Closet(s) |
| LOT | 8712 sq ft |
| LOT DESCRIPTION | Corner Lot, Level |
| LOT DIMENSIONS | 66x132 |
| PARKING | Asphalt |
| SEWER | Public Sewer |
| STORIES | 1 |
| STYLE | One and Half Story |
| SUBDIVISION | None |
| TAXES | 998.96 |
| WATER | Public |
MORTGAGE CALCULATOR
TOTAL MONTHLY PAYMENT
0
P
I
*Estimate only
Listed with Bailey Record, Modern Real Estate, Cell: 574-721-6217
The data relating to real estate for sale on this web site comes in part from the Internet Data exchange (“IDX”) program of the Indiana Regional MLS®. IDX information is provided exclusively for consumers’ personal, non-commercial use, that it may not be used for any purpose other than to identify prospective properties consumers may be interested in purchasing. Data is deemed reliable but is not guaranteed accurate by the MLS.
Copyright© 2026 IRMLS. All rights reserved.
Last Updated On: 2/17/26 12:03 PM PST
Walk Score provided by walkscore.com
Copyright© 2026 IRMLS. All rights reserved.
Last Updated On: 2/17/26 12:03 PM PST
Walk Score provided by walkscore.com
This IDX solution is (c) Diverse Solutions 2026.
| SATELLITE VIEW |
| / | |
We respect your online privacy and will never spam you. By submitting this form with your telephone number
you are consenting for Steve
Schwering to contact you even if your name is on a Federal or State
"Do not call List".

