6922 Bloom Drive, Greentown, IN 46936 (MLS # 202549163)
|
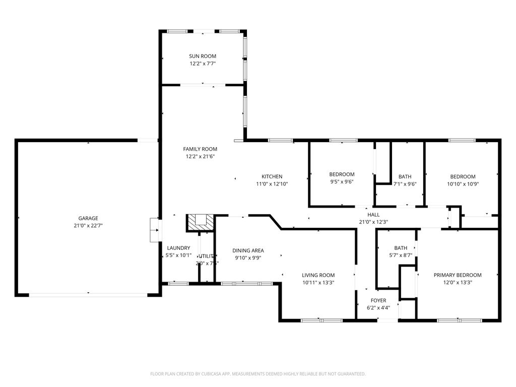
Say hello to this brick & vinyl home offering over 1800 sq. ft. This ranch is solid but could use some cosmetic updates. The functional & inviting floor plan with multiple living spaces makes this home spacious. This ranch features a living room & a separate family room with wood burning fireplace. The kitchen offers abundant cabinetry, generous counter space and convenience to the dining area & family room areas. A bright sunroom with surrounding windows adds additional living space & provides views of the large yard with a nice size wooden deck for entertaining or outdoor living. Three bedrooms are thoughtfully arranged, including a primary bedroom with updated bath with heated floors. A second updated bath (also heated floors) is adjacent to the two remaining bedrooms for easy access. Additional highlights include an attached garage with gas heater, separate laundry & ample storage. There is also a nice workshop area just off the 2 car garage. Welcome home to comfortable single level living with space both inside and out.
| DAYS ON MARKET | 1 | LAST UPDATED | 12/17/2025 |
|---|---|---|---|
| TRACT | Hidden Acres | YEAR BUILT | 1971 |
| GARAGE SPACES | 2.0 | COUNTY | Howard |
| STATUS | Active | PROPERTY TYPE(S) | Single Family |
| School District | Eastern Howard School Corp. |
|---|---|
| Elementary School | Eastern |
| Jr. High School | Eastern |
| High School | Eastern |
| ADDITIONAL DETAILS | |
| AIR | Ceiling Fan(s), Central Air |
|---|---|
| AIR CONDITIONING | Yes |
| APPLIANCES | Dishwasher, Disposal, Dryer, Electric Range, Microwave, Refrigerator, Water Softener Owned |
| BASEMENT | Crawl Space |
| CONSTRUCTION | Brick, Vinyl Siding |
| FIREPLACE | Yes |
| GARAGE | Attached Garage, Yes |
| HEAT | Baseboard, Ceiling, Electric, Natural Gas |
| INTERIOR | Breakfast Bar, Ceiling Fan(s), Entrance Foyer, Laminate Counters |
| LOT | 0.43 acre(s) |
| LOT DESCRIPTION | Level |
| LOT DIMENSIONS | 106x180 |
| PARKING | Garage Door Opener, Asphalt, Off Street, Garage, Attached |
| SEWER | Septic Tank |
| STORIES | 1 |
| STYLE | Ranch |
| SUBDIVISION | Hidden Acres |
| TAXES | 1184.31 |
| WATER | Private, Well |
MORTGAGE CALCULATOR
TOTAL MONTHLY PAYMENT
0
P
I
*Estimate only
Listed with Carrie Gruel, Carrie Gruel & Associates, REALTORS, Cell: 765-432-8955
The data relating to real estate for sale on this web site comes in part from the Internet Data exchange (“IDX”) program of the Indiana Regional MLS®. IDX information is provided exclusively for consumers’ personal, non-commercial use, that it may not be used for any purpose other than to identify prospective properties consumers may be interested in purchasing. Data is deemed reliable but is not guaranteed accurate by the MLS.
Copyright© 2025 IRMLS. All rights reserved.
Last Updated On: 12/18/25 7:25 AM PST
Walk Score provided by walkscore.com
Copyright© 2025 IRMLS. All rights reserved.
Last Updated On: 12/18/25 7:25 AM PST
Walk Score provided by walkscore.com
This IDX solution is (c) Diverse Solutions 2025.
| SATELLITE VIEW |
| / | |
We respect your online privacy and will never spam you. By submitting this form with your telephone number
you are consenting for Steve
Schwering to contact you even if your name is on a Federal or State
"Do not call List".

