285 S 8th Street, Lafayette, IN 47901 (MLS # 202602101)
|
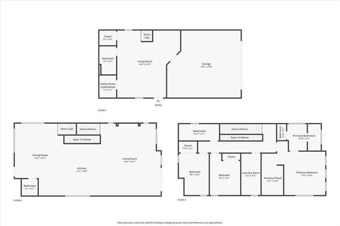
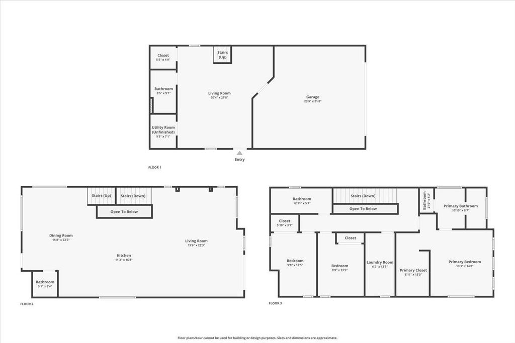
** NEW CONSTRUCTION*** Location is everything in this new downtown designer development which is a walkable 2 blocks to Main Street & quick to Purdue University. This custom modern designer 3 story home has breathtaking views of downtown that can't be beat. This home features an open floor plan that facilitates natural light throughout. The living room & its wide view of the city is breathtaking. Cozy up to a 75" linear fireplace w/built-in bookcase or step out onto the outdoor living space. The 23 foot wide front balcony allows you to take in all the city has to offer. The modern kitchen with its 8 ft horizontal window, double depth island & quartz are show stoppers. Custom linear cabinets are the perfect warmth to this clean modern design. To the rear of this open concept is dining that can fit the whole family w/light filled floor to ceiling windows. The half bath features a wall hung quartz vanity. The second outdoor space, a large rear deck is perfect for outdoor grilling and dining. The owners suite features a sky soaring 14 ft high 2 person shower which showcases a plant ledge w/natural light, a designer drop edge quartz double vanity w/wall mount tap ware & quartz ledge, a vaulted ceiling allows for bespoke light fixtures throughout this suite. An efficient custom closet features a wood & quartz builtins. The large laundry room has a sink for hand washable needs, a large folding counter & plenty of space for sorting laundry. The large guest bath w/modern vanity & quartz round out a cohesive design. The 2nd & 3rd bedrooms finish out the third floor. The main floor spacious entry has an elevated look w/ built-in wardrobe cabinetry to stow away outerwear & everyday items. The flex space makes for a perfect work from home office or perhaps an additional TV room & the full bath w/ floating wood vanity, high-end quartz, & wall mount tap ware for a perfect modern finish. Attached oversized 2-vehicle garage.
| DAYS ON MARKET | 10 | LAST UPDATED | 4/17/2026 |
|---|---|---|---|
| TRACT | None | YEAR BUILT | 2024 |
| GARAGE SPACES | 2.0 | COUNTY | Tippecanoe |
| STATUS | Active | PROPERTY TYPE(S) | Single Family |
| School District | Lafayette |
|---|---|
| Elementary School | Thomas Miller |
| Jr. High School | Sunnyside/Tecumseh |
| High School | Jefferson |
| PRICE HISTORY | |
| Prior to Apr 17, '26 | $765,000 |
|---|---|
| Apr 17, '26 - Today | $748,000 |
| ADDITIONAL DETAILS | |
| AIR | Central Air |
|---|---|
| AIR CONDITIONING | Yes |
| APPLIANCES | Dishwasher, Disposal, Electric Cooktop, Electric Oven, Electric Range, Electric Water Heater, Exhaust Fan, Microwave, Oven, Refrigerator, Water Heater |
| BASEMENT | None |
| CONSTRUCTION | Brick, Cement Siding, Other |
| FIREPLACE | Yes |
| GARAGE | Attached Garage, Yes |
| HEAT | Forced Air, Natural Gas |
| INTERIOR | Beamed Ceilings, Built-in Features, Eat-In Kitchen, Kitchen Island, Open Floorplan, Vaulted Ceiling(s) |
| LOT | 3006 sq ft |
| LOT DESCRIPTION | Landscaped, Level |
| LOT DIMENSIONS | 50X83 |
| PARKING | Garage Door Opener, Concrete, Garage, Attached |
| SEWER | Public Sewer |
| STORIES | 3 |
| STYLE | Other |
| SUBDIVISION | None |
| TAXES | 154 |
| UTILITIES | Cable Available |
| WATER | Public |
MORTGAGE CALCULATOR
TOTAL MONTHLY PAYMENT
0
P
I
*Estimate only
Listed with Kari Schrader, F.C. Tucker/Shook
The data relating to real estate for sale on this web site comes in part from the Internet Data exchange (“IDX”) program of the Indiana Regional MLS®. IDX information is provided exclusively for consumers’ personal, non-commercial use, that it may not be used for any purpose other than to identify prospective properties consumers may be interested in purchasing. Data is deemed reliable but is not guaranteed accurate by the MLS.
Copyright© 2026 IRMLS. All rights reserved.
Last Updated On: 4/27/26 10:16 PM PDT
Walk Score provided by walkscore.com
Copyright© 2026 IRMLS. All rights reserved.
Last Updated On: 4/27/26 10:16 PM PDT
Walk Score provided by walkscore.com
This IDX solution is (c) Diverse Solutions 2026.
| SATELLITE VIEW |
| / | |
We respect your online privacy and will never spam you. By submitting this form with your telephone number
you are consenting for Steve
Schwering to contact you even if your name is on a Federal or State
"Do not call List".

