3603 Clover Lane, Lafayette, IN 47905 (MLS # 202607180)
|
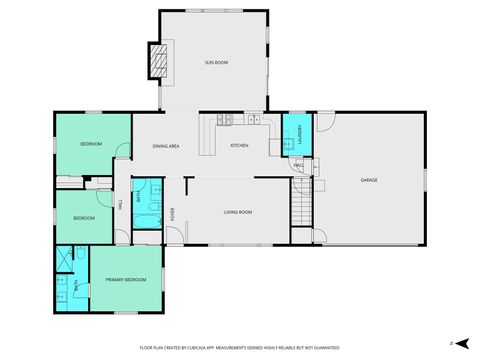
Completely transformed and move-in ready, this all-brick ranch in the highly sought-after Hershey Elementary district offers 2,607 finished square feet, including a fully finished basement with added egress bedroom and full bath. The main level features 1,750 square feet of light-filled living space anchored by a welcoming living room with fireplace. The fully renovated kitchen showcases new cabinetry, quartz countertops, and brand-new appliances, creating a clean, modern feel while maintaining the solid character of this classic brick home. All windows throughout the home are new, enhancing both efficiency and natural light. The finished basement expands the home's functionality with a newly added bedroom (with egress), full bathroom, and additional living space ideal for guests, a home office, or recreation area. Major system upgrades include a new gas furnace and central air conditioning, along with the tankless water heater for improved efficiency and comfort. Situated on a quiet private street on a spacious 1/3-acre lot, the property also includes a two-car attached garage and two storage sheds. A rare opportunity to own a fully updated home with modern systems and expanded living space in one of Greater Lafayette's most desirable locations.
| DAYS ON MARKET | 1 | LAST UPDATED | 3/6/2026 |
|---|---|---|---|
| TRACT | None | YEAR BUILT | 1966 |
| GARAGE SPACES | 2.0 | COUNTY | Tippecanoe |
| STATUS | Active | PROPERTY TYPE(S) | Single Family |
| School District | Tippecanoe School Corp. |
|---|---|
| Elementary School | Hershey |
| Jr. High School | East Tippecanoe |
| High School | William Henry Harrison |
| ADDITIONAL DETAILS | |
| AIR | Central Air |
|---|---|
| AIR CONDITIONING | Yes |
| APPLIANCES | Dishwasher, Disposal, Gas Range, Microwave, Refrigerator, Tankless Water Heater, Water Heater, Water Softener Owned |
| BASEMENT | Finished, Full, Sump Pump, Yes |
| CONSTRUCTION | Brick |
| FIREPLACE | Yes |
| GARAGE | Attached Garage, Yes |
| HEAT | Forced Air, Natural Gas |
| INTERIOR | Entrance Foyer, Master Downstairs |
| LOT | 0.33 acre(s) |
| LOT DESCRIPTION | Level |
| LOT DIMENSIONS | 100 x 143 |
| PARKING | Garage Door Opener, Off Street, Garage, Attached |
| SEWER | Septic Tank |
| STORIES | 1 |
| STYLE | 1 Level |
| SUBDIVISION | None |
| TAXES | 1265 |
| WATER | Private, Well |
MORTGAGE CALCULATOR
TOTAL MONTHLY PAYMENT
0
P
I
*Estimate only
Listed with Susan Ricci, Encore Sotheby's International
The data relating to real estate for sale on this web site comes in part from the Internet Data exchange (“IDX”) program of the Indiana Regional MLS®. IDX information is provided exclusively for consumers’ personal, non-commercial use, that it may not be used for any purpose other than to identify prospective properties consumers may be interested in purchasing. Data is deemed reliable but is not guaranteed accurate by the MLS.
Copyright© 2026 IRMLS. All rights reserved.
Last Updated On: 3/6/26 10:35 PM PST
Walk Score provided by walkscore.com
Copyright© 2026 IRMLS. All rights reserved.
Last Updated On: 3/6/26 10:35 PM PST
Walk Score provided by walkscore.com
This IDX solution is (c) Diverse Solutions 2026.
| SATELLITE VIEW |
| / | |
We respect your online privacy and will never spam you. By submitting this form with your telephone number
you are consenting for Steve
Schwering to contact you even if your name is on a Federal or State
"Do not call List".

