1625 FOXHAVEN Drive, Kokomo, IN 46902 (MLS # 202614319)
|
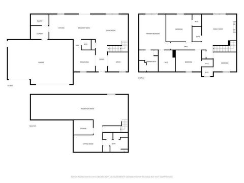
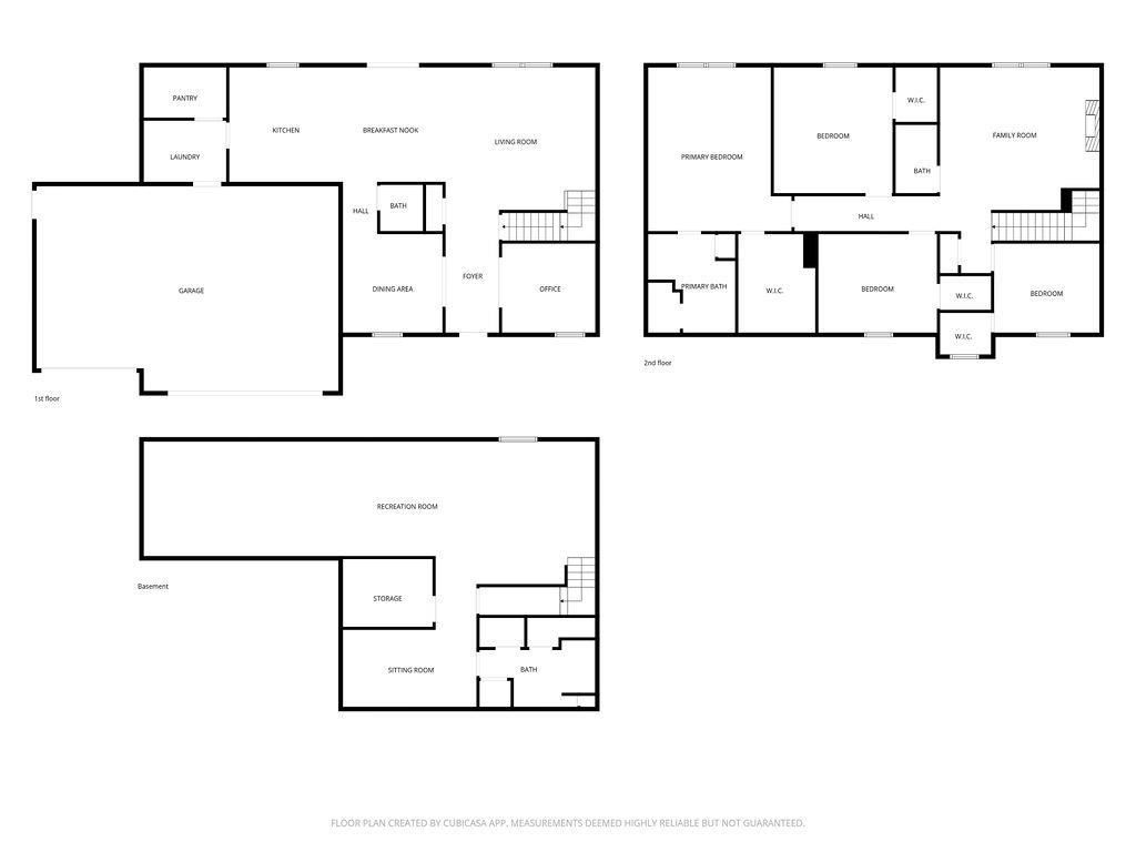
Positioned in the sought-after Wildcat Golf Course community, this expansive home offers approximately 4,000 square feet of finished living space designed for both everyday comfort and entertaining. The open-concept main level seamlessly connects the kitchen"”featuring a walk-in pantry"”with the living area, creating a functional and inviting flow. A dedicated office, den, and convenient laundry area add flexibility to the main level. Upstairs, you'll find a spacious loft with a fireplace, perfect for a secondary living space or retreat. The primary suite offers a private escape with a walk-in closet and a beautifully designed bathroom complete with a custom shower. Three additional bedrooms provide ample space for family or guests. The finished basement expands the home even further with a large living area, egress window, theatre space, bonus room, and a full bathroom"”ideal for recreation or hosting. Step outside to a fenced-in backyard featuring a maintenance-free deck and an inground pool, all overlooking a peaceful pond setting"”an ideal backdrop for relaxation or entertaining. A 3-car garage completes the package. This home blends size, function, and lifestyle in one of the area's premier communities.
| DAYS ON MARKET | 1 | LAST UPDATED | 4/22/2026 |
|---|---|---|---|
| TRACT | Walnut Estates | YEAR BUILT | 2015 |
| GARAGE SPACES | 3.0 | COUNTY | Howard |
| STATUS | Active | PROPERTY TYPE(S) | Single Family |
| School District | Western School Corp. |
|---|---|
| Elementary School | Western Primary |
| Jr. High School | Western |
| High School | Western |
| ADDITIONAL DETAILS | |
| AIR | Ceiling Fan(s), Central Air |
|---|---|
| AIR CONDITIONING | Yes |
| APPLIANCES | Dishwasher, Electric Range, Gas Water Heater, Microwave, Refrigerator, Water Heater, Water Softener Owned |
| BASEMENT | Finished, Full, Sump Pump, Yes |
| CONSTRUCTION | Brick, Vinyl Siding |
| FIREPLACE | Yes |
| GARAGE | Attached Garage, Yes |
| HEAT | Forced Air |
| INTERIOR | Built-in Features, Ceiling Fan(s), Eat-In Kitchen, Entrance Foyer, Kitchen Island, Open Floorplan, Pantry, Walk-In Closet(s) |
| LOT | 0.33 acre(s) |
| LOT DESCRIPTION | Landscaped, Level |
| LOT DIMENSIONS | 90 x 160 |
| PARKING | Concrete, Attached |
| POOL | Yes |
| POOL DESCRIPTION | In Ground |
| SEWER | Public Sewer |
| STORIES | 2 |
| STYLE | Two Story |
| SUBDIVISION | Walnut Estates |
| TAXES | 3678 |
| UTILITIES | Cable Connected |
| WATER | Public |
MORTGAGE CALCULATOR
TOTAL MONTHLY PAYMENT
0
P
I
*Estimate only
Listed with Andy Hardie, The Hardie Group, Main: 765-457-7214
The data relating to real estate for sale on this web site comes in part from the Internet Data exchange (“IDX”) program of the Indiana Regional MLS®. IDX information is provided exclusively for consumers’ personal, non-commercial use, that it may not be used for any purpose other than to identify prospective properties consumers may be interested in purchasing. Data is deemed reliable but is not guaranteed accurate by the MLS.
Copyright© 2026 IRMLS. All rights reserved.
Last Updated On: 4/23/26 3:55 AM PDT
Walk Score provided by walkscore.com
Copyright© 2026 IRMLS. All rights reserved.
Last Updated On: 4/23/26 3:55 AM PDT
Walk Score provided by walkscore.com
This IDX solution is (c) Diverse Solutions 2026.
| SATELLITE VIEW |
| / | |
We respect your online privacy and will never spam you. By submitting this form with your telephone number
you are consenting for Steve
Schwering to contact you even if your name is on a Federal or State
"Do not call List".

